合院定制 | 独立且相聚,中国人的家族与人居哲学
古时富贵之家那三进五进的院落,是现代人有志一同的向往,只因那充足的空间里,不仅有精致风雅的生活图景,还承载着亲密而有边界感的、和而不同的中国家族生活哲学。



中国的家族生活,是既独处、又相聚的。这种独立而又融合的人际关系,与西方完全不同,是最适合这个民族的生活方式,也是中国人能从家庭与生活中获得慰藉与力量的原因。
设计这个合院时,我们就想复现这种传统的家族秩序——但并不是要因循守旧——而是与时俱进、接轨当代精英的,更尊重每一个家庭成员的。


所以在设计时,我们希望从整体布局、生活场景设计和家具软装布置等方面,勾勒一个具有当代文仕贵族生活质感的栖居。

首先是空间布局。
我们化用“前庭后院”理念,把过去四合院里那种扁平的空间分割应用到三层别墅的垂直分区中,再结合每个空间的功能去改良、得到最终的合理布局。



一层室内外互动的大型聚会空间与长辈房、二层小主人的独立书房与琴房、三层有女主人和密友们分享美食好茶的下午茶餐厅……我们并不会僵化地规定每一层必须做什么,但确保每一个空间的生活,都不会互相搅扰。

几千年来,中国人对于生活美学的理解有着不变的共识:诗赋文章琴棋书画无一不通,清茶淳酒颇有讲究,文仕贵族生活图景,是在高度审美品味下的一种综合化集成,绝非简单家具的拼凑所能周全。

因此,为了让服务不同成员的功能空间亲密相邻而又互相独立、人人都拥有施展个人理想的一方天地,我们将中国传统疏、密、隔、透的造园手法引入室内空间,整合空间秩序,把握空间节奏,使各空间开合有序,进退自如。


选材方面,我们以木、石等天然材料营造自然舒适居住空间,汉唐制木起家,而木之一物,本就是最能表现东方人文气息的材质。质感,古称“物性”,把木的物性与意味,生动的融入空间各个角落。
纹理、纹饰、雕刻、结构,不同的形式,不同的美感,妆点着聚会、读书、起居等不同功能空间。木头所蕴含的微妙的东方人文气息,在合院里静静滋生。

整体配色在深浅木色、石材本色的基础上,以宋青绿山水画中深浅相宜的青绿色进行软装穿插,营造江南意境。
下面,请随我们走进这座「江南合院」。
客厅——中国家族的起居社交,庄重而不失温馨
超高挑高的别墅正厅,是家族内部的起居社交场所。周末假日,若是不出行,便一家人齐聚此处,看看电视电影、交流一番近日的生活。
主背景墙以深色雕花木饰面衬托出气势恢宏的青绿山水,提升空间高度,营造开间尺度,入座如背靠河山,挥斥方遒;唐奕沙发造型源自唐宋时期的罗汉床,自古便是担纲主位的传统家具,置于客厅正中,端庄古雅,搭配茶几、角几、电视柜等,原木与古朴的黄铜装饰结合,为客厅营造出庄重而不失温馨的氛围。
外廊阳光洒入室内,衬以窗前遒劲挺拔的松枝、室内和暖的宫灯,隐现主人家高风亮节的品德操守。

聚会空间——家庭与圈层在这里交汇
清茶醇酒自古以来便是精英贵族所好,因此合院的聚会场所虽风格古朴典雅,功能却极为丰富——室内聚会厅当中一张定制长桌,四周布局罗汉床,茶宴酒局俱可举办,厅内采光充足,光线自两侧花窗穿行而入,成为室内天然的灯光氛围。户外庭院则由开阔空间、风雅水景与茶亭共同组成。
春夏雨天煮一壶醇醇的茶、秋冬暖阳洒落,桌椅木纹如静水流深,与自然天地共鸣。夜幕低垂时还可在院子里支起烤炉来一场BBQ轰趴……
从家庭派对,到各种圈子聚会,甚或与商业伙伴相对正式的会晤,这处室内外结合的聚会大空间,均可胜任。

餐厅——不止味蕾,更是四季轮转、始终如一的相聚
三面通透的观景餐厅光线明亮,就着庭中的阳光雨露、风霜白雪,在温度宜人的室内用餐,真正体会“三餐四季”的生活真谛。而木制酒柜中妥帖贮藏的一支支洋酒,则是男女主人共同的收藏爱好——虽说二人都喜爱中国文化,但对精致西餐与酒文化,同样有着相当的涉猎。
中餐也好,西餐也罢,在家里的圆满餐桌上加餐饭,慰藉的不止是味蕾,更是因在四季轮转中如一相聚而彼此温暖的灵魂。

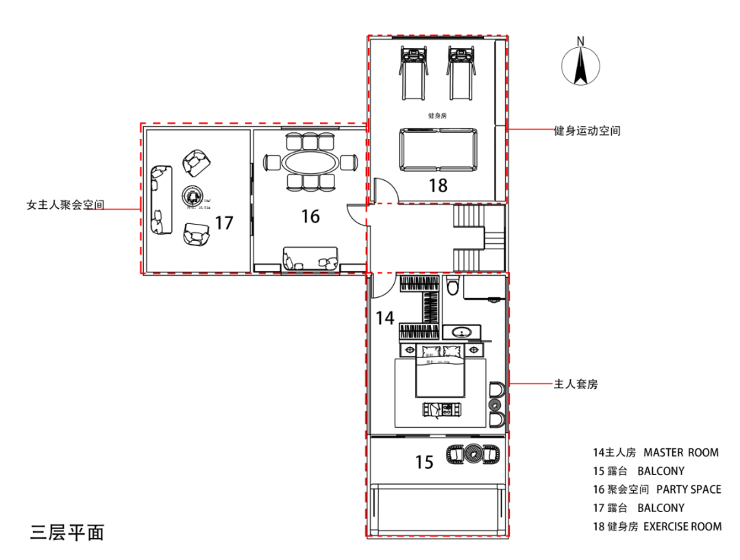
下午茶餐厅——太太们的社交场所
女主人同样有着属于自己的社交空间——位于别墅三层的一间下午茶餐厅。室内轻灵长桌、舒适餐椅,露台小茶座,每一处都体现着“舒适”二字。午后,天光树影投落在温暖的咖啡、红茶与茶点上,为生活更添一分优雅甜蜜。

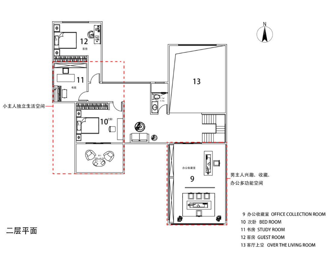
书房——两代人的自我空间
书房是放飞灵魂的自留地。别墅二层的两个书房风格迥异——父亲的书房以一方大明韵承载文房四宝,男主人处理公务之余,在此间书写志趣、欣赏藏品,整列博古架十分大气,当然,对于爱茶之人来说,长谈公事、自斟自饮,茶桌在任何空间都是必不可少的。
而设计师款致远是年轻人喜爱的极简家具款式,带柜门书架中收藏着少年郎钟爱的手办。孩子自小学习的钢琴至今仍时时弹奏,因此书房同时也是隔音琴房,墙面天花均做隔音处理,避免干扰到长辈工作休息。
入水琴音、书海遨游与情志爱好,少年人的热爱与热血,自也是一段新时代的诗歌。

父亲的书房


小主人的书房
卧室——三代人的私密空间,三种起居方式
在分配卧室时,设计师打破了传统中式起居的固有理念,而是优先考虑使用的便利性与舒适性。
如长者的起居空间就位于出入最便捷的一层,距离餐厅、客厅都很近。包含小起居室、卧室及卧室外的小院,充裕的空间可于合院内享受完全独立的生活,阅读饮茶、莳花弄草、弈棋静思……老人所需求的安宁和静,如同屋内一枝寒梅悄然绽放。
三层的主人套房则更加现代化,屋外露台的遮阳伞下,配置一套小巧玲珑的小雅方桌。清晨起床,在游泳池中游一个来回,再在方桌边对饮一杯早茶。二人世界的浪漫与私密,不因家族聚居而有损分毫。

长辈卧室、起居空间


宅园宅园,宅为起居秩序,各自安寝,园为礼乐相聚,家族圆融。
设计师充分考虑每一个家族成员的生活空间需求,将 “宅”与“园”、“独立”与“相聚”,以水平、垂直相结合的方式,合理布局在合院之中,完成了这样一个饱含着中国家族生活哲学的江南合院设计——在这个家里,每个人,都可以尽情享受诗意生活。